Locale commerciale in affitto a San Benedetto del Tronto
San Benedetto del Tronto
Zona: Porto d'Ascoli - Via Nazzario Sauro, 90
€ 1.200
#145 mq
#1
Vedi più foto
Cod. B392
€ 1.200
Classe energetica: G

Locale commerciale in affitto a San Benedetto del Tronto

Porto d'Ascoli - Via Nazzario Sauro, 90
# 145 mq
# 1 Bagni
Descrizione

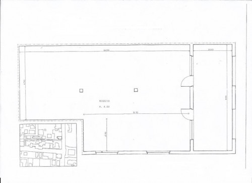
Agenzia Bruni Immobiliare propone: Locale commerciale in Affitto nelle Marche, in Provincia di Ascoli Piceno, nel comune di San Benedetto del Tronto a Porto D'Ascoli, di circa 145 mq, posto al piano terra in piccola palazzina.

Composto da: unico locale con due vetrine esposte su fronte strada ad alto passaggio veicolare, più due porte d'ingresso, oltre a soppalco di circa 70 mq ideale per magazzino o ufficio, un bagno con antibagno.

L'immobile in oggetto si presenta in ottime condizioni, con pavimentazione in parquet su tutta la superficie, aria condizionata, impianto di videosorveglianza, impianti a norma, autonomo.

Ubicato in zona centrale.

  • Locale commerciale in affitto a San Benedetto del Tronto
  • Locale commerciale in affitto a San Benedetto del Tronto
  • Locale commerciale in affitto a San Benedetto del Tronto
  • Locale commerciale in affitto a San Benedetto del Tronto
  • Locale commerciale in affitto a San Benedetto del Tronto
  • Locale commerciale in affitto a San Benedetto del Tronto
  • Locale commerciale in affitto a San Benedetto del Tronto
  • Locale commerciale in affitto a San Benedetto del Tronto
  • Locale commerciale in affitto a San Benedetto del Tronto
  • Locale commerciale in affitto a San Benedetto del Tronto
  • Locale commerciale in affitto a San Benedetto del Tronto
  • Locale commerciale in affitto a San Benedetto del Tronto
  • Locale commerciale in affitto a San Benedetto del Tronto
  • Locale commerciale in affitto a San Benedetto del Tronto
mostra di piùmostra di meno
Caratteristiche
Scopri le caratteristiche di questo immobile
Nelle vicinanze
Servizi e infrastrutture della zona
Contattaci


Alcuni immobili che potrebbero interessarti
Locale commerciale in affitto a San Benedetto del Tronto
in Affitto
San Benedetto del Tronto
Centro
€ 1.000
Locale commerciale in affitto a San Benedetto del Tronto
Cod. B373
Agenzia Bruni Immobiliare propone: Locale Commerciale in affitto nelle Marche, in Provincia di Ascoli Piceno, nel comune di San Benedetto...
Dettagli
Studio/Ufficio in affitto a San Benedetto del Tronto
in Affitto
San Benedetto del Tronto
Zona Viale De Gasperi
€ 300
Studio/Ufficio in affitto a San Benedetto del Tronto
Cod. B326
Studio affitta a San Benedetto del Tronto zona Viale De Gasperi, stanza ad uso ufficio di circa 14 mq, posta al primo piano con ascensore....
Dettagli
Appartamento in affitto a San Benedetto del Tronto
in Affitto
San Benedetto del Tronto
Centro
€ 1.500
Appartamento in affitto a San Benedetto del Tronto
Cod. B402
Agenzia Bruni Immobiliare propone: Appartamento in locazione nelle Marche, in provincia di Ascoli Piceno, nel comune di San Benedetto...
Dettagli
Deposito in affitto a San Benedetto del Tronto
in Affitto
San Benedetto del Tronto
Residenziale
€ 800
Deposito in affitto a San Benedetto del Tronto
Cod. B376
Agenzia Bruni Immobiliare propone: Locale ad uso laboratorio/magazzino in affitto nelle Marche, in Provincia di Ascoli Piceno, nel...
Dettagli
Ultimo aggiornamento 20/02/2026
×
Codice
Contratto
Scegli dove cercare
Tipologia - multiscelta
Prezzo


Totale mq


Locali minimi
Bagni minimi
Camere minime
Altre opzioni - multiscelta